学生たちの受賞作品
作品画像を見る
作品画像を見る
REVIVE ARCHITECTURE 生き返らせる建築【卒業展2025 学校長賞 / 建築・デザイン賞】
KAUNG KHANT SI THU 建築学科

卒業制作を通して、建築とは単に空間を創造するだけでなく、体験や相互作用を形作るものだと気づきました。 私のデザインは、Revive Architecture(テーマ)を探求し、都市構造における建築の役割を再定義することを目的としている。 このデザインのコンセプトは、長い間放置されてきた、歴史的に非常に重要な建築を蘇らせることを目的としています。反復とフィードバックのプロセスは、ユーザーの視点と適応性の重要性を教えてくれました。 このプロジェクトは、私の問題解決能力を強化し、今後の建築活動にも活かしていきたいと考えています。
【担当教員の講評】
建築学科意匠設計コースにゼミ制度が導入されて7年目となる。学生の作品を見ると大きく変容を遂げたことがわかる。そこには大学の卒業設計に劣らない質を目指した作品もあれば、専門学校ならではの個性を磨き上げた作品もある。彼の作品は後者である。元々持っていた表現技術によるプレゼンテーションは審査会で「デベロッパーみたい」「どこかで見たように感じる」といった批判も受けたが突き進むよう指導した。担当教員間でしばしば議題となる「専門学校らしさ」の正解が一つ出たのかもしれない。<田中おと吉>
兵庫県立美術館をぶち壊そう!!【卒業展2025 倉方賞】
大川畑 美海 建築学科



私が小学生の時に私が描いた作品が兵庫県立美術館に展示されました。それを車椅子で生活をしている父を含めて家族で見に行った際にとても不便に感じました。当時は小学生で「建築」について何も知らなかった私にとってこの場所は、二度と来たくないと思うほどとてもしんどい思いをしました。高校で建築を学ぶようになり、再び兵庫県立美術館と触れ合うことが多くなり、建築を学んでいくうちに兵庫県立美術館への怒りがふつふつと湧き上がってきました。そこで今回、卒業設計としてその抑えきれない怒りを込めてこの作品を制作しました。有名建築家が建てたというだけで使い勝手の悪い兵庫県立美術館を私の優しさで包み込んだ作品となっています。
【担当教員の講評】
こんなテーマでいいのかな?と不安な思いを持ちつつも、彼女独自の表現方法は審査会を経るたびに進化した。最終審査会で青砥先生から「マンガにするといい」というアドバイスを頂き、それを活かしての最終データとなった。改修が困難なRC造の既存建物への不満を自分の改善計画で覆い尽くす提案は、見た目はラジカルだけれども、実は無理の少ない優しい提案として結実している。<田中おと吉>
母の工房 ~古民家の再生と伝統工芸の伝承~【卒業展2025 建築・デザイン賞】
乾 眞太朗 建築学科



私は景観保護地区として建築行為が制限されているがために古びてゆく母の工房を救いたいという思いからこのテーマで卒業設計を進めました。また機織り、染め、養蚕といった、廃れてゆく伝統工芸が幼少期から身近にあり魅力を知っているためこの素晴らしさを多くの人に知って欲しいという気持ちもありました。この卒業設計をきっかけに多くのインタビューや体験を通してより母の行っている機織りや染めといった伝統工芸についてより深く知ることができより一層この技術が失われてはならないと思うようになりました。私はこの建物を将来実現することが夢です。それを叶えるため建築士として一人前になれるよう努力していきたいと思います。
【担当教員の講評】
卒業設計を通して、母に捧げる藍染工房と、保存地区の制約の中、古民家再生として地域貢献する、身近な事柄への関心の高さを高く評価したい作品です。森とまではいかないが、樹木に囲まれた工房は、生産から販売まで、更に作品の展示と、育て慈しむ空間となっています。自然素材を用いた、構造的にも優れた日本家屋と、伝統的な藍染技法の伝承は、今後の日本社会に欠かすことの出来ない大きな事柄です。<青砥聖逸>
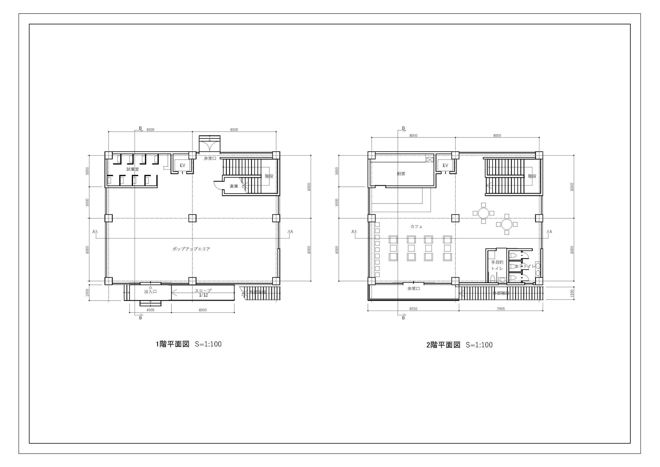
REST LIBRARY【卒業展2025 基本設計コース賞】
江口 朋希 建築学科




計画する敷地の周りに学校や団地があるので、「みんなの憩いの場になるような図書館」にしようと決めました。団体で利用できるAVコーナー、広い児童閲覧室、席数の多い自習スペースなどを設けることにより、年齢を問わず全ての人に利用してもらえるように工夫しました。試行錯誤をしても100点満点の設計にはならなかったのですが、自分の得意分野である模型製作を頑張ることにしました。模型製作では一から敷地や建物の壁、本棚などを全てCADを使って製作しました。手書きで製作するよりも時間はかかりましたが、その分寸法狂いなく綺麗な模型にすることができました。
【担当教員の講評】
設計に挑む前に参考にするために、幾つかの建築物を参考に見て歩いている。複合施設の構成の仕方も取り入れた計画である。矩計図に代わるものとしての手の込んだ建築模型。内部空間の書架からテーブル椅子なども丁寧に作成しているところが「学生らしさ」を物語る作品である。<青砥聖逸>
KHMER HERITAGE AND CONTEMPORARAY ART CENTER ークメール遺産と現代アートセンター【卒業展2025 意匠設計コース賞】
MIEN VATHANA 建築学科


私の卒業設計では、カンボジアの豊かな文化遺産を現代的なアートと融合させる新しい拠点の設計に挑戦しました。このプロジェクトでは、地元の遺産である伝統的な建築スタイルを尊重しながら、現代社会に適応した持続可能なデザインを提案しました。特に、地域の文化を次世代に継承することの重要性を意識し、訪れる人々が学び、楽しみながらカンボジアの魅力を感じられる空間を目指しました。さらに、現代アートを取り入れることで、地域アーティストが活躍できる場を提供するとともに、国際的な交流も促進することを目標としています。設計過程では、学校の先生方やゼミの先生から多くのアドバイスをいただき、社会や環境への貢献を意識したプロジェクトとして形にしました。このプロジェクトが地域社会や文化の発展に役立つことを願っています。
【指導教官コメント】
自国カンボジアにおける、現代作家の作品に注視した、アートセンターの計画です。当然の如く、ナショナリズムの建築様式を重視して計画するのが一般的でしょうが、「現代アート」と言うこともあり、現代及び未来像の建築デザインを模索した作品と言えます。「明日に向かって撃て」とばかりに、メコン湾に向かって矢を放つ様相は、正しく古代から現代への文化遺産を尊ぶ「建築」が成しえる技と評価します。<青砥聖逸>
歩く・観る・伝える【卒業展2025 企画設計コース賞】
宮田 祭音 建築学科

Re/古民家風カフェ【卒業展2025 木造コース賞】
宮部 苺花 建築学科
私の地元である愛媛県内子町は伝統的な造りの町家や豪商の屋敷が建ち並ぶ町並みが当時のままの姿で残されています。その中でも歴史ある建物が多く宿泊施設やコミュニティ施設などの古民家活用が行われている反面、危険な空き家が多く見られる小田に焦点を置き計画地としました。安全で住み続けられるまちづくりにしていくと同時にこの歴史ある景観を残していきたいという思いから、古民家風の新築をテーマに空き家を解体して出た使える古材を使用する古民家風カフェを設計しました。新築感を出しすぎない工夫は難しかったですが、古民家について深く知るきっかけになりました。これを機に古民家についてたくさんの方に知ってもらい、このように古民家の良さを未来に残していきたいです。
【指導教員からの講評】
ものづくりに携わる人の中に日本人が持つ「もの」を大切にする心が昨今薄れているように思いますが、まだまだ若い世代にもこの心が受け継がれているのだと感じることができるテーマで、そこに「らしさ」がある作品になっています。時代はどんどん進んでいきますが、これからの建築の中にそれら大切な「もの」と「らしさ」が後世にも残って行けば良いなとみる人に思わせ、考えさせる形にしたところを評価したいと思います。<岡﨑 祐介>
推し活の楽園 ~店舗の構造設計~【卒業展2025 構造コース賞】
滕 喆 建築学科
卒業設計のコースを選択する時、「力学と計算」が好きなので、躊躇せずに構造コースを選びました。前期の構造設計Ⅰの授業で「固定モーメント法とD値法」を学んだ後、夏休み1週間の勉強会から卒業設計を始めました。構造コースでは、自分でプランを設計することができ、構造設計の「プロセス」を経験することもできます。設計を通して、多くの知識を身に付け、期限内に終えることができました。設計する過程で、将来は構造設計に関連した仕事に就きたいと思うようになり、完成後に就職活動を始めました。面接では学んだことを活かして話すことができました。その結果、構造設計事務所から「内定」を頂きました。
【担当教員の講評】
滕喆さんは、趣味に基づく「店舗」の構造設計に取り組みました。設計の流れ:「基本図面作成」→「一般事項(伏図・軸組図の作成など)」→「準備計算(荷重計算など)」→「応力計算」→「断面計算」→「架構配筋図・断面リスト作成」「構造設計Ⅰ・Ⅱ」で学んだ技術をRC造建築物に応用しました。数多くの問題を乗り越えた経験は、今後の仕事に活かされるでしょう。構造コースの仲間「馮 聖霖」さんと共に。<荒木伸輔>
廃墟の再生 ~よみがえりアーキ・密からの脱却~
島田 晟那 建築学科



卒業設計を通じて、たくさんのことを学ぶことができました。最初は土地をどこにするかやアイデアを形にする難しさにとても苦労しましたが、試行錯誤を重ねていくうちに形になっていく楽しさを知りました。先生との意見交換や友達との協力を通じて、新しい知識や視点を得ることができ、とても大切な経験となりました。そして自分の時間管理や課題に対しての解決能力を鍛えることができたと思います。そしてこの経験が今後の人生に大いに役立ち次のステップへの大きな一歩となりました。ですが、今回の卒業設計は自分の考えを尊重しつつ、適切な指示をしてくださった青砥先生がいなければここまでこれなかったです。本当にありがとうございました。
【担当教員の講評】
量から質へ、与えられることから求める事への転換期として時代を迎えるべきである。知らぬ間に取り残された建物は廃墟となり、放置するのではなく、魅力的使い方で建築となり、市民の場となる。何処にでも、又これからも増加の一途を辿る都市の中の負の遺産。ZEBを加えたリノベーション計画で資産価値を挙げることが可能ではないか?!身近な社会問題提起として、諦めない提案で世に問う作品として秀逸である。<青砥聖逸>
土と暮らす美しい風景 ~田んぼアート滞在型市民農園~
宮永 唯生 建築学科


僕が今回の卒業設計を行うにあたって大きなテーマとして掲げていたのが、「地元である小野市をもっと盛り上げてたくさんの人に知ってもらいたい」という思いです。小野市はとても田舎で少子高齢化が進み、街灯が少なくまち全体が暗いイメージが強くありました。しかし、山田錦という有名な酒米の産地で田畑が広がっており、地域最大の公園では、夏には40万本のひまわりが、秋には400万本のコスモスがあたり一面に咲き誇っていたりと、美しい自然風景がたくさんあります。こういった風景を残しながらもっとたくさんの人に魅力を知ってもらうことを目指しました。今回提案するプランは都心部に住む人たちに農業を通じて小野市に訪れてもらい、実際に生活することでより身近に小野市の魅力を感じてもらえると考えました。近い将来小野市全体に今回のプランが広がっていけばいいなと思います。
【担当教員の講評】
誰しもがめまぐるしい都会を抜けて、美しく広がる田園風景に出会い、解放感で癒されます。
時と共に失われがちな一次産業。「農業は捨て去らてるのか?」とまれ!高学歴と知識豊富な次世代が居る。アートでファッショナブルな生き方で従事することにより、救ってくれることに期待する。土を耕し、種を蒔き、育て慈しむ。そんな暮らし方と風景が実現することを世に問いながら、この作品を高く評価したい。<青砥聖逸>
Open new slow street ~新しい通りのかたち~
梶原 瑚雪 建築学科

この卒業設計を作成するにあたって設定したこの敷地に対して何が必要か建築とは何かについて考えることが多くありました。この地域にできた観光地によっていつもの道が良くも悪くも変化し観光客と地域住民が混在している。そこで私はこの道を利用する観光客と地域住民が調和の取れる快適で楽しい通りに変化させたいと思い設計しました。私が実際にこの道を毎日利用するからこそここに住む人と観光に来る人がこんな新しい通りがあったらいいなと思ってもらえるよう考えながら作成しました。この卒業設計をしたことにより建築とは建物の設計するだけでなく利用する人の動きを誘導する空間を設計することも建築だということを学ぶことができました。
【担当教員の講評】
「建築」は、建物をつくるだけではなく、快適さを求めて、それ以外の余白を空間としてどう取り込むかにある。突然の大きな観光施設の出現により、外部の侵入者によって、自分たちの日常が奪われた。車の為の道ではなく、観光者の道でもない。楽しく軽快にデザインして、道ではなく「通り」にしたことを評価する。「こんな自分たちの道があったらいいな?!」子供達からもそう言われたい、学生らしい作品である。<青砥聖逸>
建築内でそぞろ歩き ~斜面に生まれたペットと人の家~
羅 俊林 建築学科



建築とは何か。これは、私が学習の各段階で必ず自問する問いです。現段階において、私は建築を「磁場を構築すること」だと考えています。この磁場は周囲の磁場と相互作用し、いわゆる周辺環境との調和を生み出します。したがって、私はまず周辺磁場の特性を分析し、それに基づいて磁場の規模や形状を構築しなければなりません。また、この磁場はそこに入ってくる人々の磁場とも影響を及ぼします。避けられないこととして、磁場の中には互いに引き寄せ合う領域と、反発し合う領域が生じます。そこで私は、人々が一つの連続した「引力の通路」を体験しつつ、その通路がつなぐ各ノードで驚きや発見を得られるようなシステムを構想しました。この、内向きにも外向きにも作用する磁場のシステムこそが、現段階における私の建築に対する理解です。
【担当教員の講評】
彼は入学時点ですでに建築提案に必要な構成力と技術を持っていた。それは1年時のコンペ入賞という結果で示された。担当教員の立場から見ると、正解にたどり着くことを急ぎすぎる傾向が強く出ていたので、卒業設計では最終提案に向けて、より深く行きつ戻りつ進めたかったが、諸般の事情でそれは叶わなかった。設計における「行きつ戻りつ」の大切さは春からの設計職の仕事の中で経験してもらいたい。<田中おと吉>
“集落(いえ)”に暮らす
宮定 凌太 建築学科


今回の卒業設計では「自然」をテーマとして取り組みました。初期段階では「人間の造るもの≠自然であり、木や水や風などの地球に元から存在するマテリアルこそ自然である」という考えであったため、住居などを全て地中に隠す案で進めていました。しかし、ブラッシュアップする内に「地球に自然的に存在する人間が生み出した物も全て自然の一部である」という考えに至りました。そして、自然と人間の関わりを考え、たどり着いたのが、森と人が変遷してゆく建築です。森の一部を建築として扱い、時間とともに住む人や建築の形が変わり、もしかすると用途も変わるような広がりのあるデザインとなっています。ただ、自分の中でこの「自然」というテーマはまだまだ考える余地のあるものだと思うので、これからも大切に扱って行きたいです。
【担当教員の講評】
1年時から形から入る大型の建築へのあこがれが見られた。そこで卒業設計ではテーマの発見、プログラムの構築といった段階的な進め方を徹底した。提案の段階に入っては、常に最小限の操作で最大限の効果を旨とするよう指導した。最後まで順調に進むことはなかったけれど、春からの大学編入へ向けて、卒業展ではあるべきプレゼン内容となることに期待している。<田中おと吉>
海と星が寄り添う宿 ~ここでしか得られない贅沢な時間~【卒業展2025 CG設計コース賞】
三野 穣 建築CGデザイン学科



私が計画したのは、「海と星が寄り添う宿」。大人限定の特別な宿泊施設です。京都府北部・丹後地域の魅力を伝え、観光のきっかけとなることを目的としています。宿は星がよく見える山中に位置し、4棟の独立した宿泊棟と、地域の特産品を生かしたレストランを設けました。寝室には大きな天窓を配置し、ベッドに横になりながら満天の星を楽しめます。また、専用の露天風呂やプライベートシェフサービス、リビングとダイニングを遮光カーテンで仕切る工夫など、大人が贅沢に過ごせる設計としました。この宿を通じて、丹後の新たな魅力を知ってもらい、再訪する人を増やすことを目指します。
【担当教員の講評】
本設計は、海と星が織りなす静寂と安らぎを提供する大人限定の宿を提案したもの。喧騒を離れ、落ち着いた時間を過ごせるよう、プライベート性の高い客室と静寂を重視した空間を配置し、焚火と星空が織りなす幻想的な雰囲気を演出した。火を囲むことで生まれる自然な対話や、非日常のひととき、風を感じる設計。地元を知る彼女だからこそ幻想的で落ち着きある提案ができたのであろう。<辰井菜緒>
お互いさまとお陰さま【卒業展2025 CGデザインコース賞】
田中 滋温 アイラ 建築CGデザイン学科
技術の発展によって失われつつある「お互い様とおかげ様」の精神を取り戻すため、この集落を設計しました。技術の発達により生活は便利になりましたが、能動的な行動や人との温かいつながりが希薄になっています。また、五感を通じた創造の力も衰えつつあります。本作品では、五感を活かし、心に余裕を持てる環境を提供することで、競争から協調へと意識を転換し、共生社会を築くことを目指します。「こだわりルーム」を備えた家では、住人が自身の「好き」を追求し、縁側や庭で自然な交流を育みます。集落の中心には「センターサークル」があり、住民のふれあいの場となるほか、介護・学童施設を併設し、お互いを支え合う環境を整えました。この集落を起点に、人間味ある社会を取り戻していきます。
【担当教員の講評】
彼は以前より、人間の「能動的な行動や、人との温かいつながり、五感を通じた創造の力が衰えている」と感じており、対策を考えていた。そして今回この問題に対して「競争から協調へ意識転換」をキーワードに成長する集落を提案する。これは始まりであり、人と人とが縁を結ぶように、徐々に広がっていく。家をあえて点在させ、曖昧な空間(自由空間)を持たせることで、自然と人々が集まり思い思いに過ごすことができる。「こだわりルーム」を持つ家では、同じ「好き」を持った人同士が縁側や庭で集い交流する。ちょっと離れたところでなんとなく人の気配を感じれて、1人ではない安心感と、「困った時はお互い様よ」と言い合えていた懐かしい場所と時代を思い出させる作品である。<岡部優季>
美術館 ー水面反射 と 作品 の 対話・水鏡の美術館ー
松本 琉汰 建築CGデザイン学科





この美術館は、建物の周りの水面反射により、作品を視覚や聴覚を通して感じてもらうことをコンセプトに設計しました。他の美術館にはあまり見られない、建物の外壁をガラスにすることにより、周りの景色を眺望でき、室内でも自然を感じることが出来ます。また、1Fにはカフェスペース、最上階には屋外緑化がある為、他には無いひと時を味わうことが出来ます。一般的に展示されている作品だけではなく、地域の方の作品を展示することによりその作品作成者の可能性を少しでも広げることが可能です。
【担当教員の講評】
水面反射を活用した図書館の創出。建築と水景を一体化させることで、静寂と奥行きを生み出し、利用者に落ち着いた環境を提供する。外部には広がる水盤を配置し、建築のファサードや周囲の自然が水面に映り込むことで、景観との調和や自然光と反射を利用して柔らかな光環境を形成、ゆらぎが空間に動的な表情を与え、知的創造を促す場となることを目指した作品。シンプルな形を日頃から好む彼らしいカタチとなった作品である。<辰井菜緒>
自然と一緒に
蒲生 美結 建築CGデザイン学科



今回計画した地域は私の祖父母が暮らしている地域になっており、高齢化や過疎化が深刻な地域でもあります。思い出が詰まったこの場所を大切にしたいという思いが強く、できるだけ自然豊かなこの風景を壊さないように活かし、人と自然が調和した空間をコンセプトにし今回デザインしました。
【担当教員の講評】
植物や動物を育てる大変さと命への責任などを高校で学んだ彼女だからこその着眼点と、優しさの詰まった提案となった。自然豊かで、大好きな祖父母との思い出が詰まったこの地域で、人間の一方的な計画ではなく、「自然からこの場所を貸していただく」気持ちと、「失われつつあるものを守り育てていく」使命感を持ち合わせた計画である。訪れる人々に安らぎを与えつつも、絶滅危惧植物である「ムラサキ」を通して、自然に対して、人間のこれからの在り方と、行動を考えさせるきっかけとなるだろう。<岡部優季>
廻る【卒業展2025 西濱賞 / 建築・デザイン賞 / インテリアコース賞】
吉村 真菜 空間デザイン学科






私の卒業設計は、廃墟の持つ美しさに魅力を感じたことがきっかけでした。敷地は大阪城公園の一角にあり、砲兵工廠化学分析場という建物があります。今では廃墟化しており、解体される可能性のあるこの負の遺産を再生するための提案をします。担当してくださった大河先生が仰っていた、「学生のうちにしかできないような、自分の好きなようにできるという学生の特権をたくさん使って卒業設計を考える」この言葉を常に意識していました。この作品は私が憧れていた、歴史を辿りその場所の記憶を知ることで設計をすることに挑戦した作品です。見てくださった方が歴史を知り、残していきたいと思ってもらえるきっかけとなることを願います。
【担当教員の講評】
先の大戦から今日まで大阪の発展の歩みを見守ってきた歴史深い遺構の保存・再生が卒業設計の題材となりました。調べをすすめ工廠が未活用であるため解体をという声があがるなか、保存して欲しいという地域の声に耳を傾け、工廠のみではなく周辺の教育施設、環境等をいろいろな手法で繋ぐことで新たな人の流れを生み出しました。また、デザインの視点から建築物の保存・再生に取り組むことで、彼女が真摯に2年間で培ってきたデザイン力を十分に発揮し、彼女らしい素敵な価値・魅力を感じられる作品作りになったのではないかと思います。<大河千春>
地下駅とわたしとパニック症と。 - 地下駅が大嫌いなわたしが、地下駅という建築とありのままの自分を受け入れるための卒業設計-【卒業展2025 内倉賞 / 建築・デザイン賞】
磯﨑 拓人 空間デザイン学科


高校2年生の冬の頃、わたしはパニック症を発症しました。この出来事は、わたしにとって憧れでありパワー溢れる「建築」というものを恐怖へと化すものでした。子供の頃から大好きだった建築へと出向くことを恐れ、そして家の外へと出向くことさえも拒むようになりました。この恐怖は今もわたしの心の奥底に眠る忘れたくても忘れられない恐怖なのです。この自身の現状をもし自分が変えることができるならば、挑戦してみたいと強く思うようになり、今回の卒業設計で取り組むことを決心しました。わたしの大嫌いな地下駅を題材にした今回の作品はあくまで序章にすぎません。わたしの挑戦はこれからも自分自身を強くし、そして鼓舞してくれるものだと信じています。この作品がそしてこれから生まれるわたしの作品が沢山の人に影響を与えるものになるよう、これからも精進することを固く誓います。
路地のロジック【卒業展2025 空間ディプロマコース賞】
有末 妃那 空間デザイン学科



路地の暮らしについて考えました。谷町六丁目を調査していくうちに、住む人たちと接する機会が増えたり、路地の多くの魅力に出会えたと同時に、路地の暮らしやカルチャーが、段々と街の開発によって廃れてしまっていることを知りました。廃れしまっている大きな原因としては、どんどん古い町屋は消えてゆき、マンションや集合住宅が増加しているのが一つの原因だと私は考えます。路地には、受け継ぐべきカルチャーがあると私は思います。それは住まい方だったり、人と人との何とも言えない距離感だったり、伝統や文化だったり。建物の形態が変化しても、この暮らしを受け継げるような、ほんの少しのロジックを提案します。
【担当教員の講評】
彼女の舞台は大阪の谷町六丁目かいわい(通称からほり)。
松屋町~上町筋まで東西約800mつづく商店街を中心に、空襲の被害が少なかったためにいち早く復興したという歴史があります。周辺には昭和時代初期の長屋や路地が残り、近年、地元建築家らが長屋を改装した雑貨店などができ活況を呈しています。しかし高齢化や無秩序なマンション開発で、本来とは異なったカタチになってきています。彼女はこの街を歩き、多くの路地居住者にインタビューし分断された長屋界隈とマンション、それぞれの居住者をつなぐために街全体に路地を張り巡らせるリノベーションを考えました。タイトルの「路地のロジック」は言いえて妙です。道路ではなく、人が中心の路地幅スケールで街が毛細管現象のように潤っていく、そんな卒業設計になりました。<眞野サトル>
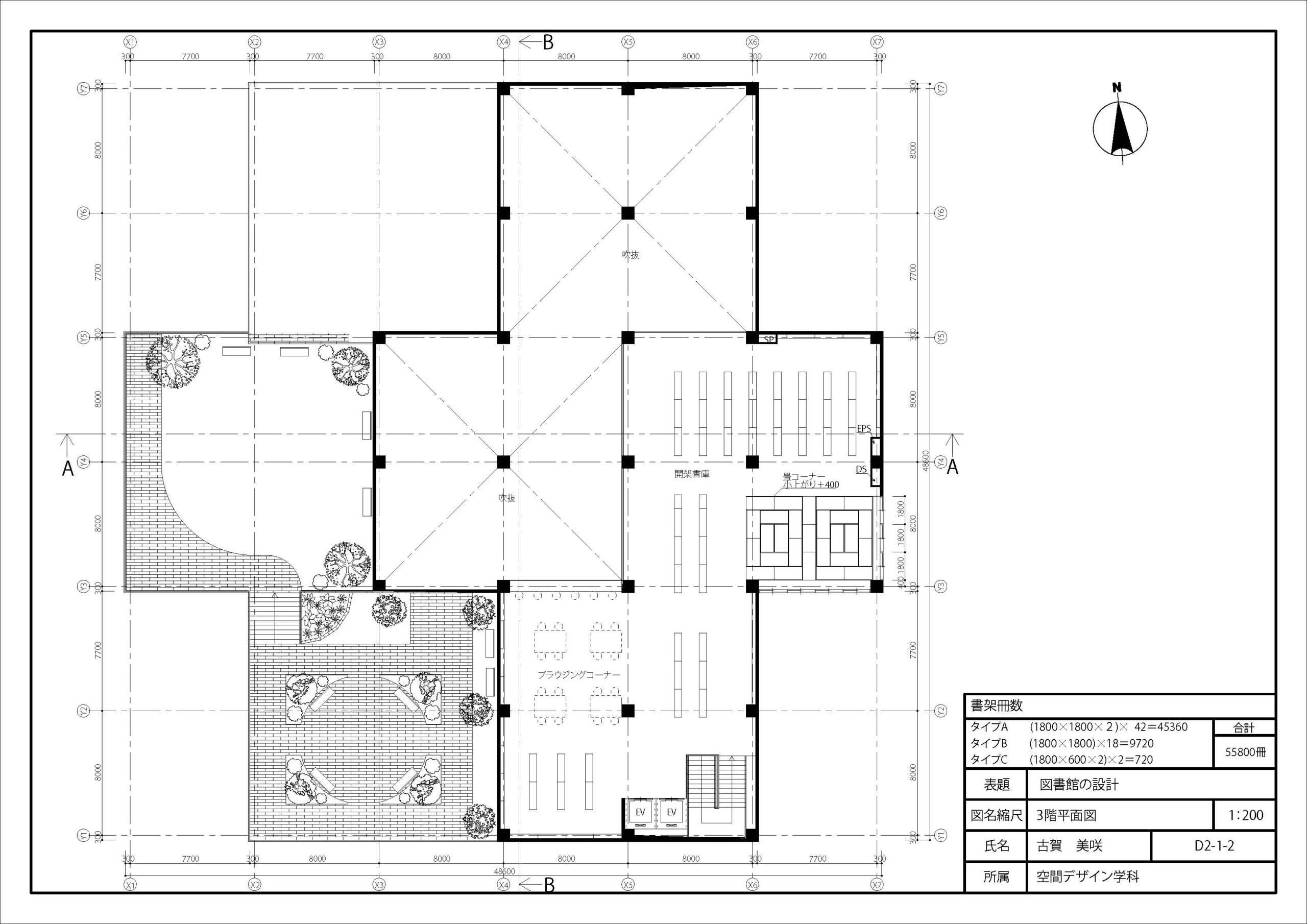
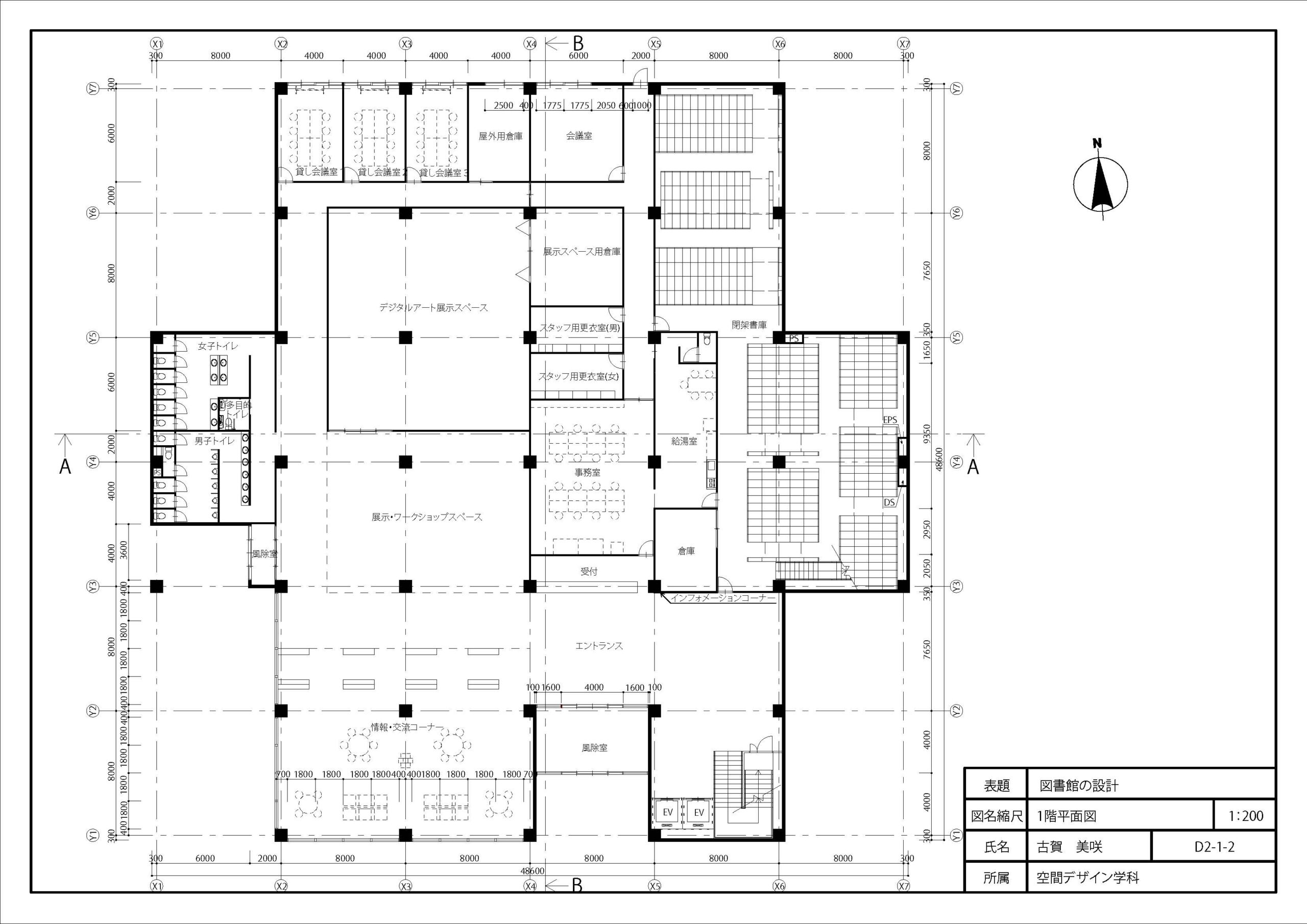
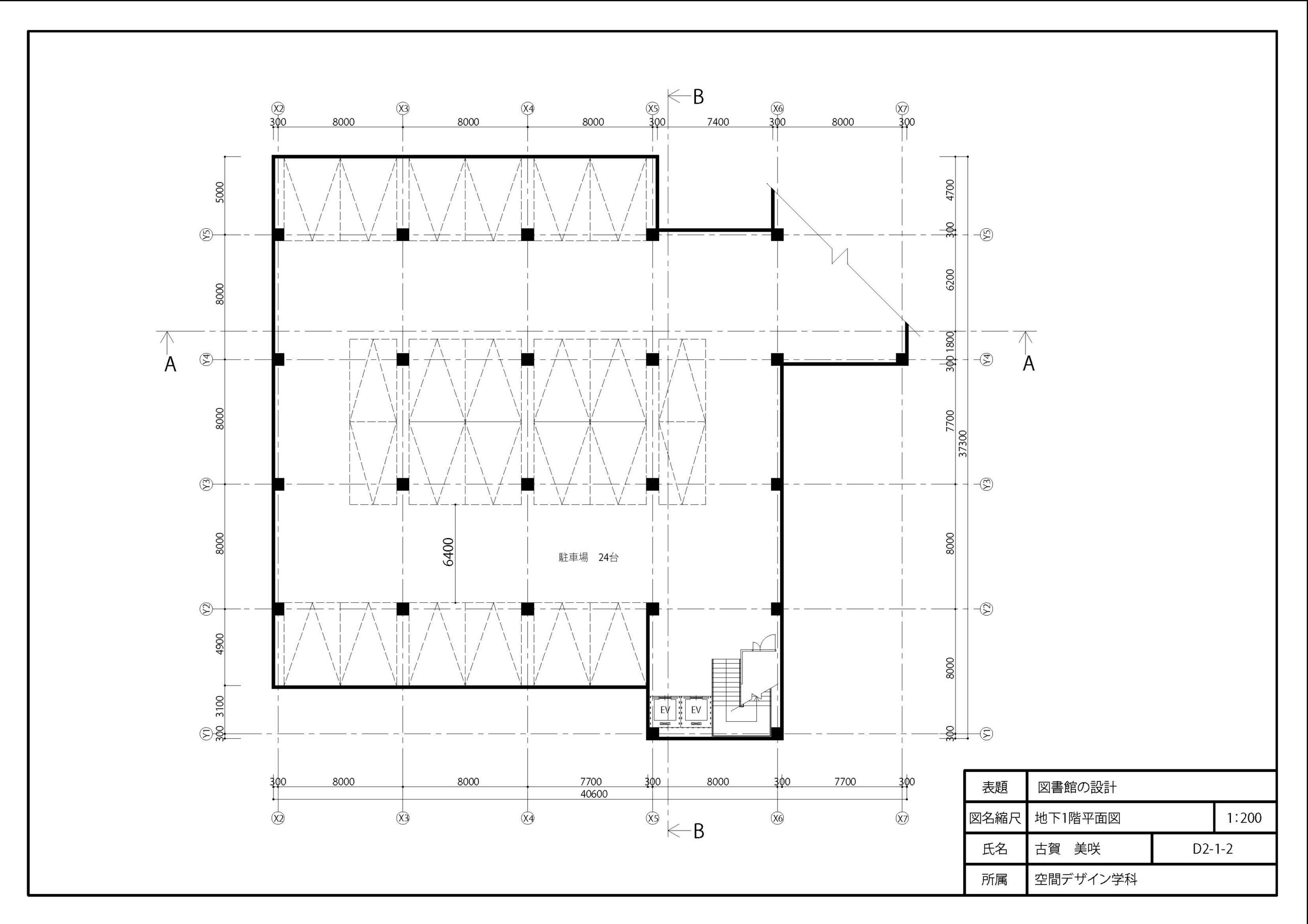
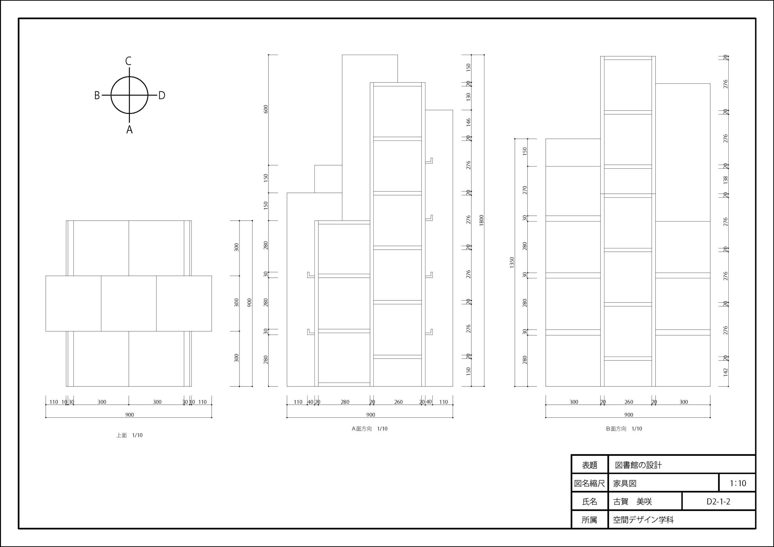
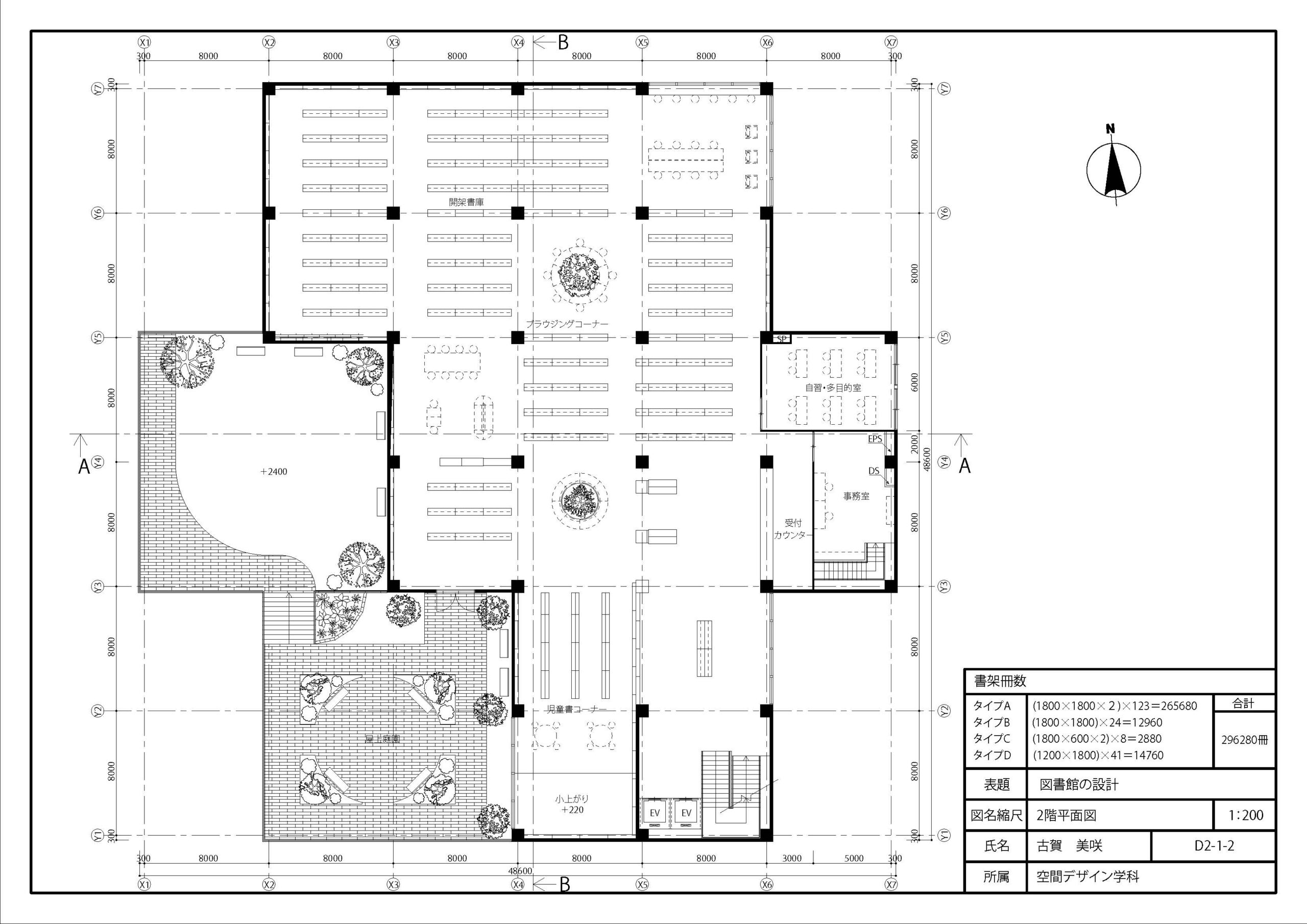
文化と知識の融合を促進するアート図書館の設計【卒業展2025 空間基本設計コース賞】
古賀 美咲 空間デザイン学科



この図書館は「成長」をテーマに設計しました。外観を階段状にすることで積み上げてきた知識や経験を階段に見立てて、その階段を上ることで成長していく過程を表しています。私の中での図書館は静かにしなければいけない雰囲気に息が詰まるような場所で、勉強には適しているとは思いますがリラックスして本を読むには少し居心地の悪さを感じることもありました。そのため机に向かって過ごす場所だけでなく姿勢を崩して過ごせる場所も作ることで自分の目的に合った過ごし方ができ、より多くの人に利用してもらえるのではないかと考えました。
【担当教員の講評】
箱を螺旋状に積んだような外観は、四方が道路に囲まれた敷地環境を理解し全方位を平等に扱っている。それが外観だけでなく内部空間の豊かさにも活かされており、その場に立った時にどう見えるか、感じるかを立体で捉えて設計出来ているところが優れた点である。平面計画では来館者ゾーンとスタッフゾーンが明確に分離され、均整の取れた柱の配置と各室のレイアウトも非常にスマートでこのまま実現してもおかしくない作品といえる。<大澤亮介>
ものがたり座
山田 琴音 空間デザイン学科
梅田スカイビルのすぐ隣に、誰もが気軽に立ち寄れる図書館を設計しました。観光客や地元の方が本を読んだり、一息ついたりできるよう、開放的で心地よい空間を目指しています。自然光をたっぷり取り入れた明るい館内には、地域の文化を紹介する展示や様々な知識を吸収できるコーナーを用意。静かに読書を楽しむだけでなく、人と知識がつながる場になればと思います。都市の中に新しい「居場所」をつくることで、図書館の魅力をもっと広げたいと考えました。
【担当教員の講評】
印象的なのは「新しい物語や知識の扉を開く」という外観の特徴からくるテーマです。私たちは大なり小なりいくつかの本を読んで育ってきました。読む本や出合ったタイミングで受ける影響も様々です。それによって個性が彩られたり。。そんな本との出会いを作る場所としての「図書館」は、本を開いた形が人を引き込み、館内のいたる場所が暖かみや詩情にあふれた空間になっています。いちど模型の屋根という1ページを開いて中を読んでみてください。きっと私たちの扉が開かれると思います。<眞野サトル>
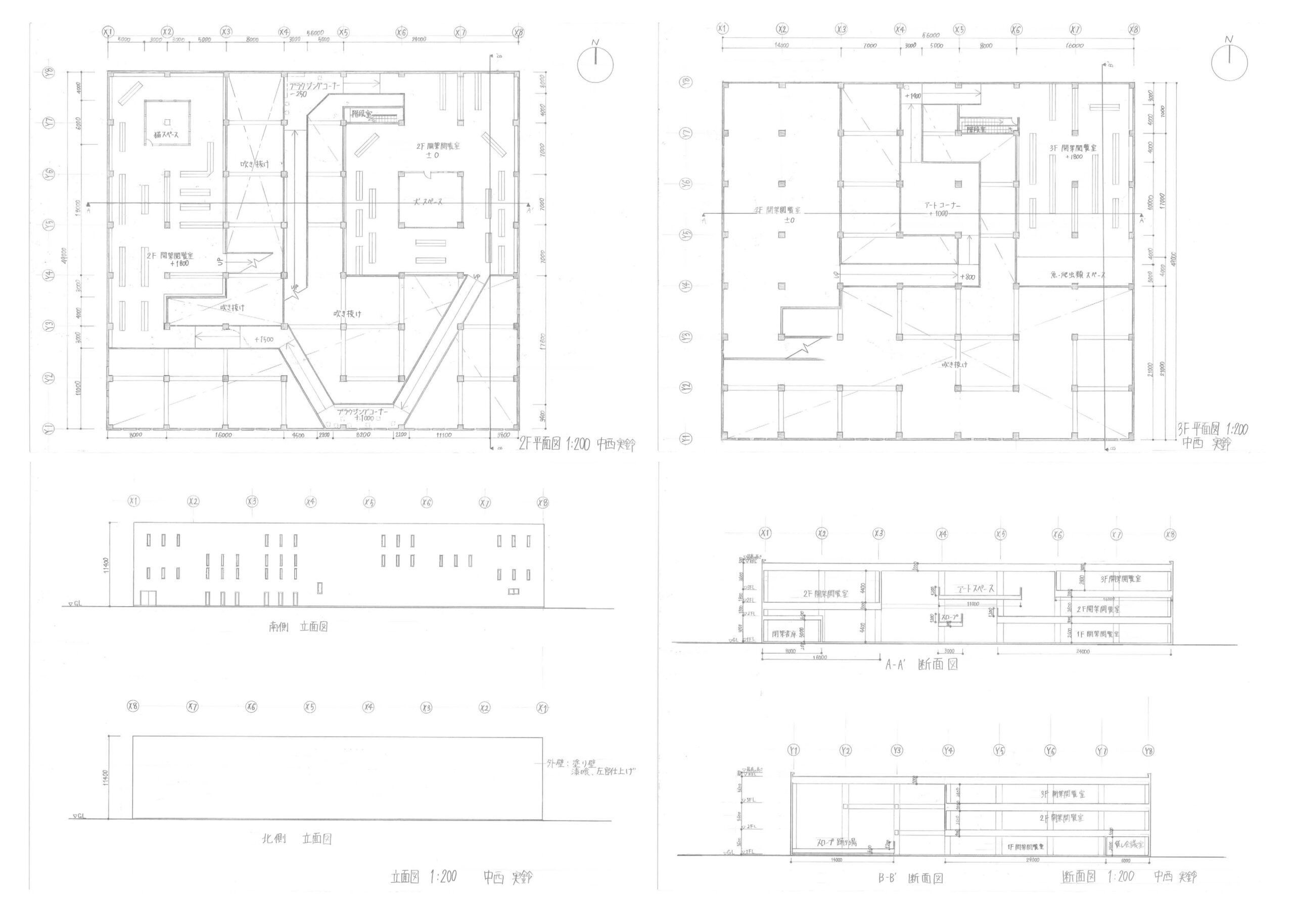
〜スロープで繋がる〜 学ぶ図書館
中西 実鈴 空間デザイン学科
本が苦手な私にとって図書館は近寄りがたい場所でした。そこで、本を読むだけじゃない図書館を考えました。「歩く」と「読書」は一見ミスマッチのようですが、実は適度な運動と知識による脳への刺激はとても親和性が良いとされています。この図書館は館内にめぐらされた非常に長いスロープで本の居場所が結ばれていおり、気に入った本を持ち、少し散歩し、また本を追う、そんな風景がこの図書館では日常の景色になっているでしょう。またこの図書館は「本」と「生き物」が一緒の空間にあります。例えば図鑑を読み、そこに載っていた生き物をリアルに見たり触れたりという体験ができます。これからのスタンダードになりそうな近い未来の図書館です。
【担当教員の講評】
「歩く」と「読書」は一見ミスマッチのようですが、実は適度な運動と知識による脳への刺激はとても親和性が良いとされています。この図書館は館内にめぐらされた非常に長いスロープで本の居場所が結ばれています。気に入った本を持ち、少し散歩してまた文字を追う、そんな風景がこの図書館では日常の景色になってるでしょう。また本棚の周りには本(知識)と生き物(体験)がニアリーにあります。例えば図鑑を読んでそこに載っていた生き物がリアルに観れる!などという体験ができます。これからのスタンダードになりそうな近い未来の図書館が出来ました。<眞野サトル>
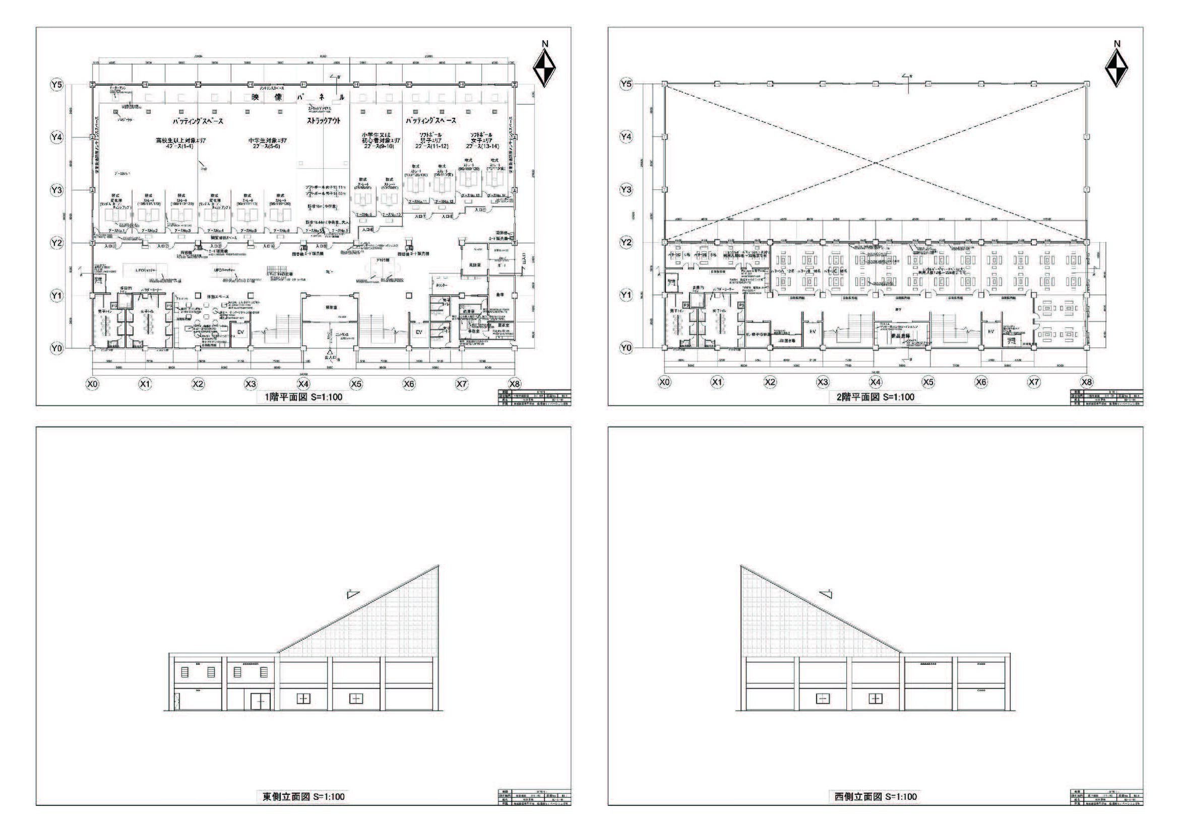
-B³aS³e- 『baseball×batting×barbecue』 『softball×stadium×stars』【卒業展2025 構造・施工賞 / 自由創作コース賞】
竹本 早希 住環境リノベーション学科


このバッティングセンターは境港市内の人たちだけでなく他の地域の人たちにも利用してもらえるように建造し、たくさんの人が境港市に来てもらいたいという思いから設計しました。模型で工夫したところは、窓のサッシの部分とガラスガラリの部分もを細かく針金で作製したところです。他にも、水の部分はUVレジンで透明感をだし、ウッドデッキの部分は、1×1の木に色を塗り、切り込みをいれ、板同士のつなぎ目を再現しました。土の部分は毛糸を使用しています。屋根の部分は、使用したガルバリウム鋼板の色に似た紺色を探し、太陽が当たり光っているようにみせるため、パール入りの絵の具を選びました。見る角度によって色が変わって見えるのもポイントです。そして、バッティングセンター、ピッチング、トイレの3つの建物全て入り口を細かく作製しました。建物の柱と梁が出ている立体感も見所です。
【担当教員の講評】
自由創作という幅広い捉え方のもと、パースやスケッチアップなどを使用せずに自分の持ったイメージを具現化するのに苦労し、行き着いたのがインテリアでした。彼女の実体験をもとに未就学児からお年寄りまでが幅広く使える施設を検討し、外構部分にも重きを置いて制作しました。舗装構成や植栽の計画にも手掛け「建設」として幅広く考えすべてのものに意味が存在する一つの空間を考えることで建築だけではなく土木や造園などの大きな分野で考えた「修成」ならではの作品が出来上がりました。1/300模型も細部にこだわり、書類関係もどうすれば手に取ってもらえるかを考えました。この先分野に捉われず「建設」を考えた経験が生きてくることを期待します。<広田莉音>
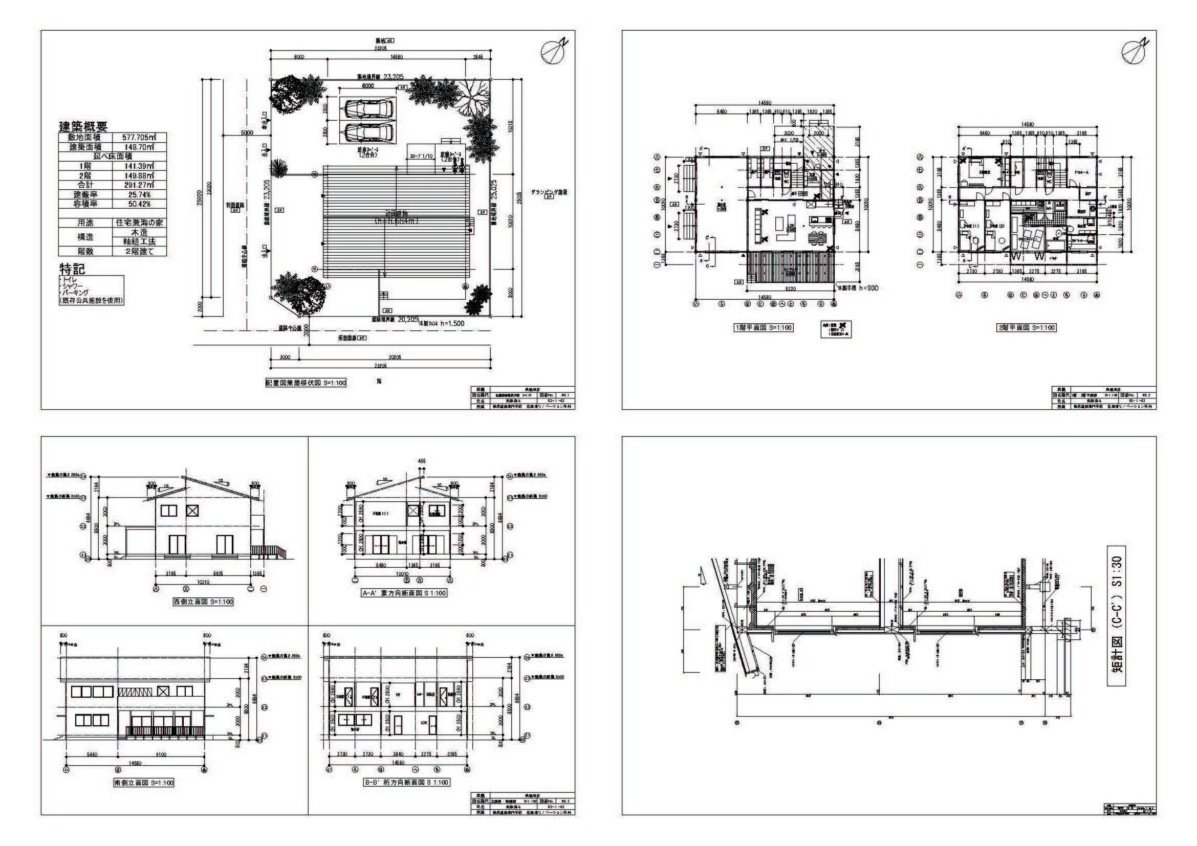
海から始まる自然溢れる癒しの場【卒業展2025 構造・施工賞 / 造施工管理コース賞】
長坂 海斗 住環境リノベーション学科

今回の卒業設計では、自然と共生し地域社会にも貢献できる住宅兼海の家を提案しました。住宅部分は、大きな窓から四季折々の美しい風景を堪能できる開放的な空間を創出し、ウッドデッキやインナーバルコニーを通して自然を身近に感じられる設計としました。海の家部分は、地域住民の交流の場となることを目指し、イベント開催や特産品販売などを通して地域活性化に貢献できるような工夫を凝らしました。夏には食べ物販売やマリンスポーツの拠点となり、人々が集う賑わいの場となることを想定しています。本設計を通して、自然と共生し、地域社会に貢献できる建築の可能性を強く感じました。自然の恵みを享受しながら、人々が集い交流する場を創出できたことは大きな喜びです。今後は、この設計をさらに発展させ、詳細設計や環境負荷低減技術の検討を進めるとともに、地域住民の方々と意見交換を重ね、真のニーズに合った建築を目指していきたいと考えています。
【担当教員の講評】
この作品は彼の地元、徳島県の阿南市を舞台に、建築物を通じて自然豊かな海を背景に地元住民との交流に加え、町の活性化を図ることを目的としてスタートしました。「人」と「自然」、「社会」を繋げ、かつ家族と「住」を満喫できる夢ある作品であると感じております。計画からはじまり、作図、模型作成と流れ、木造在来軸組構法の更なる知識向上と成長が見受けられました。何より楽しく丁寧に、この作品を作り上げてくれたことに感謝したいと思います。<樋下 昌俊>
道の駅グランピングの里 ~琵琶湖の景色、特産物を堪能できる場所~【卒業展2025 建築施工管理コース賞】
東村 直紀 住環境リノベーション学科

私が施工管理コースを選択した大きな理由は、就職する企業が鉄筋コンクリート造等の施工管理を行っている企業で、一度全体的な流れを体験してみたいという思いからです。私は、設計するのが苦手で初めはコンセプトがまとまらず、地元滋賀県の琵琶湖を活用して地域の活性化を図りたいという思いがあり、少しの滞在でも楽しめる道の駅を作成しました。作成するのに授業では木造のことが多かったので初めは大きい規模の設計が難しく苦戦しましたが、試行錯誤を重ねていくうちにアイデアの出し方、図面の書き方を少しずつ理解でき、担当の先生のアドバイス、指導のおかげで就職しても役立つ図面が書けました。私は初めから出来ないとマイナスから入ってしまうことが多いですが、今回卒業設計を作成して、やれば身につくことがわかり就職しても生かして行きたいと思います。
【担当教員の講評】
非木造コース選択者が彼だけでした。当初は不安を抱えながらスタートしました。努力家の彼は、何より私のところへ卒業設計においての相談に何度もきてくれました。卒業設計を通じて、鉄筋コンクリート造に関する知識や施工図の描き方、工事中の仮設計画、コンクリートの拾い出し方などが習得できたと思います。模型においては、サイズ規定から周辺環境より建物を重視したいという意向を尊重しました。例年にない開口部の作成や、セパレートできるように作成しております。住環境リノベーション学科最後の施工管理コースにふさわしい作品になりました。彼のコメントにもあるようにマイナスから入ったとしても、努力し、やり遂げることで自信にもつながり、「やればできる」ということを実感したと思います。目指せ!スーパー現場監督!ありがとうございました。<樋下 昌俊>
道路設計コース(路線設計CIM)【卒業展2025 土木賞 / 道路設計コース賞】
CUTFORTH NAUMATI LOTOAU 土木工学科

課題の目標は、Excelを使ってわかりやすく詳細な施工要領書を作成することでした。先生から、手順を視覚的に図解するためのイラストデータを頂き、とても助かりました。しかし、私たちはまだ多くの材料を見つけ、インターネットや教科書から選択した建設手順について調べ、私がそれをよく理解して資料作成しなければなりませんでした。手順の順番だけでなく、潜在的な危険性や工事中の危険の回避方法についても知らなければならなかった。計画書に書いた手順に合うイラスト表現は難しく、唯一手に入る素材を使ってほとんどを自分で作らなければならなかったので、とても時間がかかりました。この課題に取り組んだことで、工事を成功させるためには、その前にどれだけの努力、時間、創造性、心構え、戦略計画が必要かを理解することができました。それは将来、私の仕事に役立つものだと思います。
【担当教員の講評】
土木施工管理技術検定の合格を目指して日々勉強を重ねていますが、実際に施工管理を行うためには、資料作成や作業手順の理解も欠かせません。このコースでは、CIMを用いての図面作成、数量計算、そして図面に基づいて施工を行うための「施工要領書」を作成することが求められました。現場経験がない、または浅い学生にとっては、作業手順や作業に潜む危険ポイントについて十分な知識がない場合があります。そのため、自ら現場をイメージし、テキストなどを使って調査を行い、得られた情報が今回の図面に最適かどうかを判断し、それを正確に表現することが重要な課題となりました。この経験は、将来現場で活躍するために必要な能力を培うものであり、これからの成長の基盤となることを期待しています。<穴吹勇樹>
地下埋設物調査【卒業展2025 道路設計コース賞】
後藤 奉孝 / HETTIARACHCHI RAVINDU DILHARA UDAYAKANTHA 土木工学科
私たちは将来インフラに関する仕事を目指しており、そのためインフラ調査や管理の重要性を深く理解したいと考えました。そこで、卒業設計のテーマとして「地下埋設物調査」を選びました。当初は地下埋設物調査に関する知識が全くなく、どのように進めるかもわかりませんでした。しかし調査を進める中で、上水道、下水道、ガス、通信ケーブルなど、生活基盤を支える埋設物が地中に複雑に張り巡らされている現状を知り、それらを一目で把握できる「複合平面図・複合断面図」が改良工事や災害復旧に非常に重要であることに気づきました。この経験を現場で生かしたいと思います。
【担当教員の講評】
本作品は、道路敷に埋設されている上下水道、ガス、電話などの位置情報を調査し、それを基に作成された複合平面図および複合断面図が非常に正確かつ明確に表現されている。特に、埋設管の勾配計算や、台帳記号の解読など成果品に至るプロセスが丁寧に進められている点が高く評価されます。埋設管調査は、埋設年度や素材の情報も再認識でき老朽化による事故防止や災害復旧などに役立つ大切な業務です。この研究経験が埋設物管理における効率化と安全性向上への一助となることを期待します。<川西幸男>
道路交差点設計【卒業展2025 道路設計コース賞】
RANKADU WEERAGEDARA KASUN CHAMARA WIJESIRI 土木工学科
この作品は、私たちが日ごろ頻繁に使用している交差点の設計です。与えられた交通条件をもとに、交差点で渋滞が発生しないよう、信号の長さを調整するなどして計算した上で、交差点の幾何構造を決めました。先生から提供されたPDFの資料によって基本的には作業が円滑に進みましたが、設計の過程では計算が多く、excelでは時々エラーが発生し、電卓で計算してまたexcel入力を確認するというトライ&エラーの繰り返しに時々苦労しました。それが一番頑張ったところです。またこの卒業設計では、友達と話し合って図面のあいまいな部分が明確になったところもあります。協力してくれた方々に感謝いたします。
【担当教員の講評】
この作品は、ある交通流を想定し、その交通流を捌くことができるような交差点を設計するという、土木のソフト面である「交通工学」をメインとしたものである。信号現示をトライアル計算により調整し、需要率を下げて交通流を捌くことができる交差点が設計されている。一方で、ハード面についても、道路幾何構造は道路構造令に準拠されており、苦労した導流路も正確に描かれている。ハード面とソフト面の両方が考慮された、現実の設計に近い作品であった。<広瀬一樹>
道路路線設計【卒業展2025 道路設計コース賞】
油谷 琳斗 建設エンジニア学科




卒業設計は、地形図を使い、山頂に向かって片側幅員5m全幅10mの道路を300m計画するというものでした。まずは配布された地形図上の等高線を読んで現地の縦断図と横断図を作成しました。その横断図に縦断計画した道路を記入し、切土は1:1盛土は1:1.5ののり面こう配で横断図を作成した。その後、土量計算のために必要な切土面積、盛土面積をAutoCADの面積計測の機能を活用して求め、土量計算書と土積図を作成した。この作業を通して難しかったのはAutoCADとExcelを併用して作成していくところでした。図面の寸法や値を読み間違えるとExcelも修正しないといけなかったので苦労しました。この卒業設計ではCAD作成技術やExcelでのまとめ方などを学びまた作成にあたり正確さとより迅速に作成することが大切だと知り今後の仕事にも活用していきたいです。
【担当教員の講評】
道路設計コースの道路路線設計は、入学してから学んだCAD製図、測量学、施工学などの知識を基に、地形図をもとにペーパーロケーションで等高線を読みながら、縦横断測量から土量計算までの一連の流れを実施している。この設計はこれまでの学習成果である知識を活用し、直線の道路ではあるがエクセルの計算機能やAuto CADの計測機能等を活用し道路の縦横断計画をして図面にまとめている。<野瀬 孝男>
0円庭園 ~あふれ花壇の庭~ 【卒業展2025 SDGs賞 / 施工コース賞】
梶本 爽花 ガーデンデザイン学科
この庭園は多肉植物のあふれ花壇や石積植栽、ウッドチップを敷いたナワシログミの植栽などのロックガーデンを意識した構成になっています。
この庭園の石積植栽は狭い石と石の間に多肉植物を植栽するという過酷な環境になっています。
それはなぜかと言うと私はこの庭園に、
修成建設専門学校を卒業して新社会人として働く同級生に向けてこの先辛い出来事があ っても、
この多肉植物のように過酷な状況で力強く根を張り、いずれ美しい花や葉をつけようというメッセージを込めているからです。
今はまだ、庭園の植栽は小さく弱弱しいですが数年後にはオーレアの花が咲いて多肉植物も大きく成長して緑豊かな色とりどりのあふれ花壇になります。
私はこのあふれ花壇の庭園を見た人々や、修成建設専門学校の卒業生たちの今後の人生が、溢れるほどの幸せや喜びが多いものになって欲しいと思っています。
最後に、資材を提供してくださった企業様や施工の協力してくださった方、にお礼申し上げます。
【担当教員の講評】
この作品は作者の学生時代に抱えたいろいろな葛藤や悩みなどが溢れ、思いが詰まった作品である。作者は何事にも熱心に取り組み、設計、施工だけでなく廃材を収集するためにいろいろな企業様へ連絡し、収集して施工チームのみんなを率いて、いろいろな課題にぶち当たる中でも果敢に取り組む姿をずっと見守ってきました。
0円庭園は初めての取り組みであり、まさに0→1に作り上げていくプロジェクトでした。
完成まで成し遂げることができたのも彼女が果敢に取り組む成果であったと思います。
最後に、資材を提供してくださった企業の皆様、この活動で学生たちは提供してくださった方の温かみや優しさを感じ、机上では体感することのない経験ができました。厚くお礼申し上げます。<窪田彩音>
堺市都市緑化センター整備計画 ~文学の森~【卒業展2025 造園賞】
横田 好葉 ガーデンデザイン学科
堺市は、豊かな歴史と伝承文化を有する文化都市として知られています。それらを守り堺市がたくさんの人があふれる場所にしたいと思い、SDGsの目標である15「陸の豊かさを守ろう」と16「平和と公正をみんなに」を掲げ、堺市生まれの作家与謝野晶子をモチーフに設計しました。SDGs15ではたくさんの緑とホタル保護を、SDGs16ではみんなの憩いの場となる大きな広場を設けました。また、実のなる植物を植栽することや写真映えするような植栽にすることで、ファミリー層や若者にアプローチをかけ、集客効果があるようにしました。こんなに規模の大きい計画設計をするのは初めての経験だったので、樹木選定や、どのようにすれば人が集まるかなどを考えて設計するのに苦慮しましたが、先生方の助言もありやり遂げることができました。自分の成長に繋がったと思います。この経験を活かし、卒業後も精進していきたいと思います。
【担当教員の講評】
与謝野晶子の文学にインスパイアされた「文学の森」というテーマが設定されています。この計画では「文学を通じて植物を感じる」というコンセプトのもと、訪れる人々が文学と自然の融合を体感できる場を目指しているようです。SDGsの目標15「陸の豊かさを守ろう」16「平和と公正をすべての人に」を取り入れ、環境保全と平和のメッセージを発信している点が素晴らしいですね。ゾーニングは5つのテーマに分けられ与謝野晶子の作品を象徴的に表現している様です。以下のようなイメージを持ちました。1.舞姫ゾーン ー繊細な美しさと優雅さを表現。2.蓮の花船ゾーン ー静寂の中にある生命力を象徴。3.臙脂紫ゾーン ー豊かで深みのある情感を感じさせる空間。4.はたち妻ゾーン ー若さと希望をイメージ。5.春思ゾーン ー春の柔らかい想いを込めたエリア。これらのゾーンは、それぞれ独自の景観と映える風景を創出し、訪問者が自然と文学の繊細な調和を楽しめるようデザインされています。訪れる人々が、与謝野晶子の文学世界を背景に自然との対話を深め、心の豊かさを感じることができる、特別な空間となるでしょう。この計画を通じて、堺市が地域文化を育みつつ持続可能な未来への貢献を目指している点が、とても意義深いです!<松田泰行>
堺市都市緑化センター整備計画 ~リトリートガーデン~【卒業展2025 設計コース賞】
木村 輝星 ガーデンデザイン学科
堺市都市緑化センターでは「みんなが楽しくなる体験型植物園」を目指して植物を暮らしに取り入れ様々なイベントが開催されています。ですが、現在の緑化センターには植物に興味を持たない方々を惹きつける魅力が十分ではないという課題があります。その改善案として今回の「リトリートガーデン」を提案しました。植物にまだ興味のない方も、魅力ある様々なイベントを通して間接的に植物に触れ興味を持って貰うことで新たな顧客を獲得することが今回の計画の目的です。多くの時間を費やし、行き詰まることも何度かありましたが先生方に助けられ仕上げることができました。今回の取り組みで得た経験を、これからの成長につなげていきたいと考えています。
【担当教員の講評】
この計画では「みんなが楽しくなる体験型植物園」を目指し、四季折々の花と緑を楽しめる空間を提供しています。現在、特徴的な取り組みが行われており、地域との密接な連携が進んでいるようです。これにより、植物を中心とした市民交流の場が育まれるでしょう。特にSDGsの目標11「住み続けられるまちづくり」と15「陸の豊かさを守ろう」に対応した活動ができるでしょう。計画内のゾーニング構成も素晴らしく、それぞれが異なる楽しみを提供しています。1.オータムゾーン(四季の庭)季節の移ろいを象徴する庭で訪れるたびに新しい発見が楽しめる。2.ロックブルームゾーン(ロックガーデン)石と植物のコントラストが楽しめる空間。3.クイーンゾーン(ターフガーデン・古墳ガーデン)歴史的な背景を感じられるデザイン。4.ビィラゾーン(ペレニアガーデン、パティオガーデン、キッチンガーデン、シェードガーデン)多彩な庭の形式が楽しめる、家族連れや個人利用にも最適なエリア。これらのゾーニングにより、緑化センターが単なる観賞の場ではな、リラックスと楽しみを提供する「リトリートガーデン」として魅力を発揮することが期待されます。この計画を通じて、堺市が地域住民や観光客にとってさらに魅力的な拠点となり、持続可能な都市づくりのモデルとして発展することが期待されます。<松田泰行>
0円庭園 ~再生の庭~
田中 美咲 ガーデンデザイン学科
この作品のこだわりはコンクリートブロックやレンガをメインに使用したデザインです。施工場所は過去の卒業生である先輩たちが造った庭を改修するということで、元あるものを撤去し私がデザインしたものを施工するということなので、“卒業した先輩たちが積み上げてきたもの“と”私たち学生がこの学校で積み上げていくもの“を表現しました。ブロック1つではなく何個も集まりモノが完成します。この作品を施工する時には1人では解決できないこともありましたが、ブロックのようにチームみんなで集まり協力して作り上げた作品です。廃材を収集してプランを計画して材料を検討してまた計画を練り直して竣工までたどり着きました。これから入学してくる後輩たちにもデザインから施工まで1から自分たちで造り上げる楽しさを、庭を通して伝わればいいなと思っています。最後になりましたが、ご提供いただいた皆様とご協力していただいた皆様にお礼申し上げます。
【担当教員の講評】
今回のプロジェクトは初めての試みであり、まさに0からのスタートである。庭を完成させるためにいろいろな企業様に直接問い合わせたりSNSでPRしたりと収集活動に尽力した。材料を収集していく中で提供してくださる方の温かみや卒業生のつながりが感じられる経験が“積み重なった”プロジェクトとなった。また、ブロックは1つではなく何個も集まりモノが完成する。この作品を竣工させるには作者1人では解決できないこともあった。だがブロックのようにチームみんなで集まり協力して作り上げた作品である。<窪田彩音>
ambivalent ~ライブハウスとこども食堂~【卒業展2025 夜間意匠設計コース賞】
成田 勝弥 建築・デザイン学科(夜)

60年代のイギリスに『アーキグラム』という建築家集団がいた。彼らの活動はカウンターカルチャーとなり、ハイカルチャーの対抗文化とされた。建築で遊び、表現し、頭の中で解体した建築のコラージュ作品は、ポップアートのアンチェインだった。10代の頃、ビクビクしながら初めて行ったライブハウスで「社会とは潜り込むもので、決して捕まるな」と誰かが言っていたのを思い出す。齢45歳、カルチャーを語るにはまだ若いが建築を学ぶには遅いのかもしれない……しかし、シドヴィシャスの21年、ジャニスやカートや尾崎の27年、ジミヘンドリックスの28年、皆写真の中でいつまでも若く、私の哀れにも生き残った彼ら以降の歳月が『こども食堂』に暖簾を掛けた。この作品はその半生を綴った文学である。
専用住宅【卒業展2025 課題指定コース賞】
佐藤 龍一 建築・デザイン学科(夜)
【指導教員からの講評】
<井上 嘉亮>
TOGA TERRA
中野 木晴 建築・デザイン学科(夜)


富松に住む
増田 芽生 建築・デザイン学科(夜)

生まれ育った街である富松の田園景色が段々と住宅地に変わっていくのを見て、ここ数年水張りが行われていない田んぼを貸農園にし、住民が実際に手を加えていくことで街や景色に愛着を持ってもらう提案を考えました。敷地には稲穂に見立てた柱を等間隔に建て、利用者は柱に道具を掛けたり休憩したりと、小屋のように使いこなしていきます。畑と場が耕されていく様子を思い描きました。
日常に公園のくつろぎを。
黒田 裕子 建築・デザイン学科(夜)
公園の改修をテーマに、地域住民が集いくつろげる場を目指して設計しました。歴史や利用者のニーズを調査し、六甲山や生田川といった地域特有の魅力を活かしつつ、自然と人が調和する空間を提案しました。